Holiday home - 8 persons - 5113TA - Ulicoten
Alternative accommodations
Nearby (21)8 persons
Overview
Object-no.: 363-NL-6988-58
7 nights
From
EUR 1,483.-
Incl. cleaning
8
persons
- Short breaks available Yes
- Sauna Yes
- Dishwasher Yes
Description
Palette Resort de-Steppe Family Stay
House:
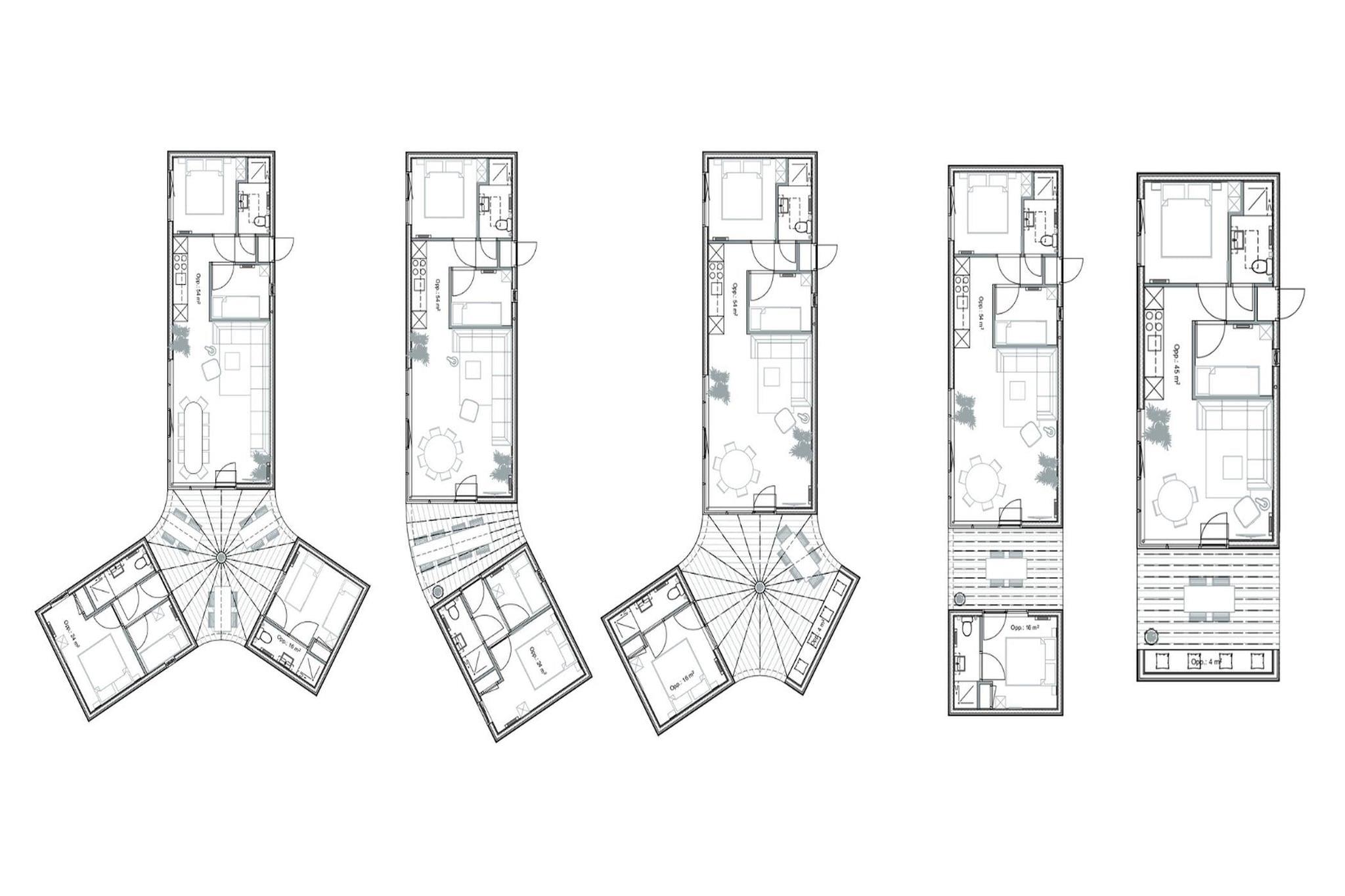
Set amid the quiet greenery of Ulicoten in Noord-Brabant, this stylish eco forest home is a place where families and friends can truly slow down and reconnect. Designed for up to 8 guests, the holiday home blends contemporary comfort with a deep respect for nature, offering a refined yet relaxed setting that feels worlds away from mass tourism. The home is part of a small-scale boutique park known for its calm atmosphere and thoughtful design. Built as a nearly energy-neutral BENG home, it uses sustainable materials and modular construction to create bright, flexible living spaces that merge seamlessly with the surrounding landscape. Inside, warm natural tones, a welcoming living and dining area, and an open kitchen equipped with modern essentials invite long meals, laughter, and easy togetherness. Comfortable bedrooms, including family-friendly sleeping arrangements, make it ideal for holidays with children. Step outside to enjoy the peaceful Brabant countryside, where nature is always close. The area is perfect for cycling, walking, and outdoor adventures, while families will love nearby attractions such as Speelboerderij de Vossenberg and the unique Schijnvliegveld de Kiek. Nature lovers can explore the scenic Kempens Landschap around Wortel-Kolonie, while daily conveniences like shops, bakeries, and tourist information in Baarle-Nassau are just a short drive away.
Layout:
Ground floor: (open kitchen(electric kettle, cooker, coffee machine, combination microwave, fridge-freezer), Living/diningroom(TV, dining table, seating area), bedroom(double bed or 2 single beds), bedroom(bunk bed), bathroom(shower, washbasin, toilet), veranda(seating area, cooker, Cooking basics)) bedroom(bunk bed), Bedroom with bathroom(double bed or 2 single beds, shower, washbasin, toilet), hot tub, sauna
House:
Set amid the quiet greenery of Ulicoten in Noord-Brabant, this stylish eco forest home is a place where families and friends can truly slow down and reconnect. Designed for up to 8 guests, the holiday home blends contemporary comfort with a deep respect for nature, offering a refined yet relaxed setting that feels worlds away from mass tourism. The home is part of a small-scale boutique park known for its calm atmosphere and thoughtful design. Built as a nearly energy-neutral BENG home, it uses sustainable materials and modular construction to create bright, flexible living spaces that merge seamlessly with the surrounding landscape. Inside, warm natural tones, a welcoming living and dining area, and an open kitchen equipped with modern essentials invite long meals, laughter, and easy togetherness. Comfortable bedrooms, including family-friendly sleeping arrangements, make it ideal for holidays with children. Step outside to enjoy the peaceful Brabant countryside, where nature is always close. The area is perfect for cycling, walking, and outdoor adventures, while families will love nearby attractions such as Speelboerderij de Vossenberg and the unique Schijnvliegveld de Kiek. Nature lovers can explore the scenic Kempens Landschap around Wortel-Kolonie, while daily conveniences like shops, bakeries, and tourist information in Baarle-Nassau are just a short drive away.
Layout:
Ground floor: (open kitchen(electric kettle, cooker, coffee machine, combination microwave, fridge-freezer), Living/diningroom(TV, dining table, seating area), bedroom(double bed or 2 single beds), bedroom(bunk bed), bathroom(shower, washbasin, toilet), veranda(seating area, cooker, Cooking basics)) bedroom(bunk bed), Bedroom with bathroom(double bed or 2 single beds, shower, washbasin, toilet), hot tub, sauna
Facilities
-
Building status
-
Detached
-
-
Distance
-
Bakery3.5 km
-
Busstop3.3 km
-
Foods3.4 km
-
Lake15.2 km
-
Other11.5 km
-
Tourist information3.4 km
-
-
General information
-
Coffee Maker
-
Dish washer
-
Dishes and Silverware
-
Fridge
-
Living space85 m²
-
-
Kitchen Items
-
Coffee machine
-
Combination microwave
-
Cooker
-
Cooking basics
-
Electric kettle
-
Fridge-Freezer
-
-
Plumbing / Washing
-
Hot tub
-
Sauna
-
Shower
-
Toilet
-
Washbasin
-
-
Room Items
-
Dining table
-
Seating area
-
TV
-
-
Type
-
Holiday home
-
Short stay
There is a possible chance for a short vacation this year.
Prices and calendar
Calendar
Duration
Persons
Price
Period
- Arrival
- Departure
- Duration
- 1 week
Persons
No persons specified
Please notice
Arrival not specified.
Persons not specified.