Holiday home - 12 persons - 5113TA - Ulicoten
Alternative accommodations
Nearby (21)12 persons
Overview
Object-no.: 363-NL-6988-66
7 nights
From
EUR 1,783.-
Incl. cleaning
12
persons
- Short breaks available Yes
- Sauna Yes
- Dishwasher Yes
Description
Elegant Home at Palette Resort de-Steppe
House:
Surrounded by open meadows, quiet forests, and the gentle rhythm of the Brabant countryside, this spacious holiday home in Ulicoten is made for memorable group getaways. Designed for up to 12 guests, it is ideal for large families, multi-generational holidays, or friends travelling together who value comfort, design, and nature in equal measure. The atmosphere is calm yet inviting perfect for slowing down, reconnecting, and enjoying time together away from mass tourism. The home blends contemporary comfort with sustainable living. Warm natural tones, generous living spaces, and a modern open kitchen create an easy flow for shared meals and relaxed evenings. Bedrooms offer flexible sleeping arrangements, making it well suited for adults and children alike, while the veranda and outdoor seating invite long breakfasts, board games, and sunset conversations. This is a place where large groups can feel at home without ever feeling crowded. Its location makes it especially appealing. Baarle-Nassau is just a short walk or drive away, with shops, bakeries, and local cafés close at hand. Nature lovers can explore the Kempens Landschap and Wortel-Kolonie, cycle through forest trails, or enjoy peaceful lakeside moments nearby. Families will love trips to Speelboerderij de Vossenberg, while culture seekers can plan day visits to Tilburg or Antwerp. Whether your group is here for outdoor adventures, quality family time, or simply the joy of being together, this holiday home offers the space, setting, and serenity to make every stay feel special.
Layout:
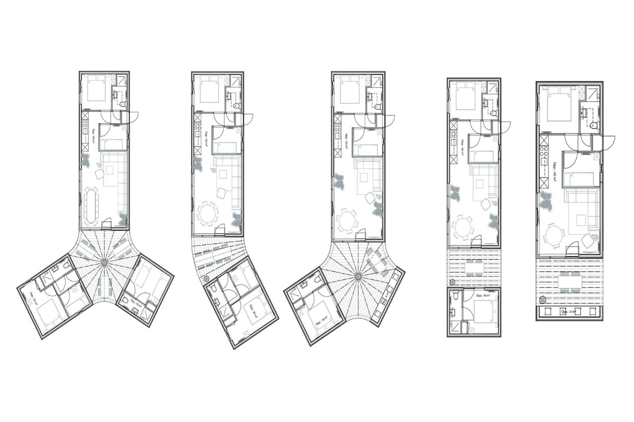
Ground floor: (open kitchen(electric kettle, cooker, coffee machine, combination microwave, fridge-freezer), Living/diningroom(TV, dining table, seating area), bedroom(double bed or 2 single beds), bedroom(bunk bed), bathroom(shower, washbasin, toilet), veranda(seating area, cooker, Cooking basics)) bedroom(bunk bed), Bedroom with bathroom(double bed or 2 single beds, shower, washbasin, toilet), Bedroom with bathroom(bunk bed, bunk bed, shower, washbasin, toilet), hot tub, sauna
House:
Surrounded by open meadows, quiet forests, and the gentle rhythm of the Brabant countryside, this spacious holiday home in Ulicoten is made for memorable group getaways. Designed for up to 12 guests, it is ideal for large families, multi-generational holidays, or friends travelling together who value comfort, design, and nature in equal measure. The atmosphere is calm yet inviting perfect for slowing down, reconnecting, and enjoying time together away from mass tourism. The home blends contemporary comfort with sustainable living. Warm natural tones, generous living spaces, and a modern open kitchen create an easy flow for shared meals and relaxed evenings. Bedrooms offer flexible sleeping arrangements, making it well suited for adults and children alike, while the veranda and outdoor seating invite long breakfasts, board games, and sunset conversations. This is a place where large groups can feel at home without ever feeling crowded. Its location makes it especially appealing. Baarle-Nassau is just a short walk or drive away, with shops, bakeries, and local cafés close at hand. Nature lovers can explore the Kempens Landschap and Wortel-Kolonie, cycle through forest trails, or enjoy peaceful lakeside moments nearby. Families will love trips to Speelboerderij de Vossenberg, while culture seekers can plan day visits to Tilburg or Antwerp. Whether your group is here for outdoor adventures, quality family time, or simply the joy of being together, this holiday home offers the space, setting, and serenity to make every stay feel special.
Layout:
Ground floor: (open kitchen(electric kettle, cooker, coffee machine, combination microwave, fridge-freezer), Living/diningroom(TV, dining table, seating area), bedroom(double bed or 2 single beds), bedroom(bunk bed), bathroom(shower, washbasin, toilet), veranda(seating area, cooker, Cooking basics)) bedroom(bunk bed), Bedroom with bathroom(double bed or 2 single beds, shower, washbasin, toilet), Bedroom with bathroom(bunk bed, bunk bed, shower, washbasin, toilet), hot tub, sauna
Facilities
-
Building status
-
Detached
-
-
Distance
-
Bakery3.5 km
-
Busstop3.3 km
-
Foods3.4 km
-
Lake15.2 km
-
Other11.5 km
-
Tourist information3.4 km
-
-
General information
-
Coffee Maker
-
Dish washer
-
Dishes and Silverware
-
Fridge
-
Living space100 m²
-
TV
-
-
Kitchen Items
-
Coffee machine
-
Combination microwave
-
Cooker
-
Cooking basics
-
Electric kettle
-
Fridge-Freezer
-
-
Plumbing / Washing
-
Hot tub
-
Sauna
-
Shower
-
Toilet
-
Washbasin
-
-
Room Items
-
Dining table
-
Seating area
-
TV
-
-
Type
-
Holiday home
-
Short stay
There is a possible chance for a short vacation this year.
Prices and calendar
Calendar
Duration
Persons
Price
Period
- Arrival
- Departure
- Duration
- 1 week
Persons
No persons specified
Please notice
Arrival not specified.
Persons not specified.